290 E. Pine Grove Rd

Overview

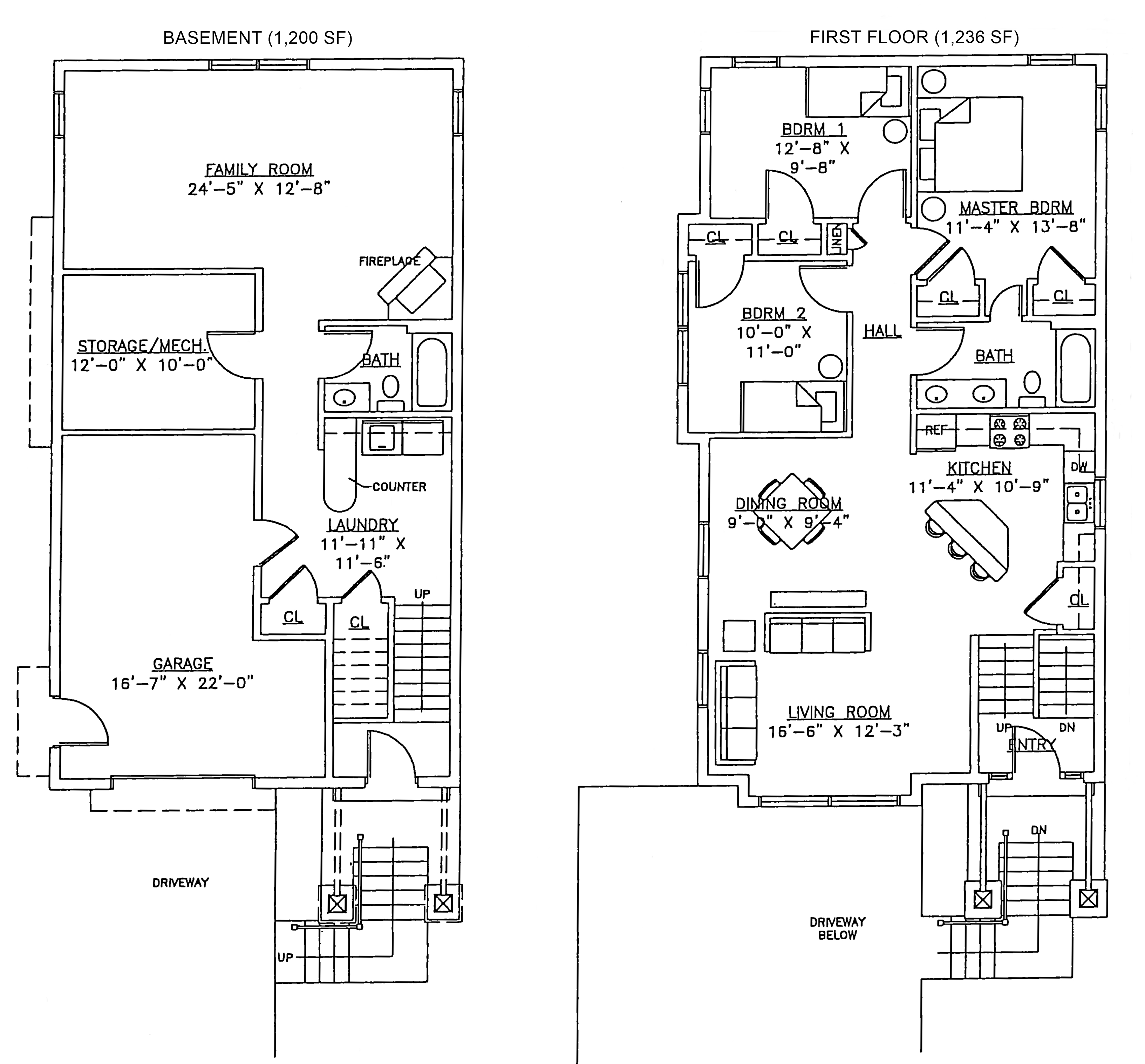
Newly-constructed in 2017, this three bedroom house is competitively priced and located within a few minutes drive to the downtown State College area, Boalsburg, as well as the expressway.

Features include:
  • Living room
  • Family room
  • Kitchen
  • Dining room
  • Basement laundry room
  • Finished basement
  • One-car garage
  • Driveway


Floor Plan Beds Baths Rent Type Availability Max Occupancy
3 BR 3 2 $1,910 Unfurnished Rented 3

Apply Now

Apply Now

Contact / Inquiry Form

    captcha