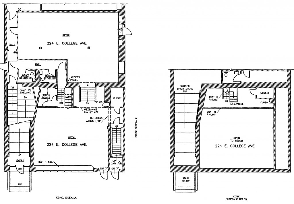
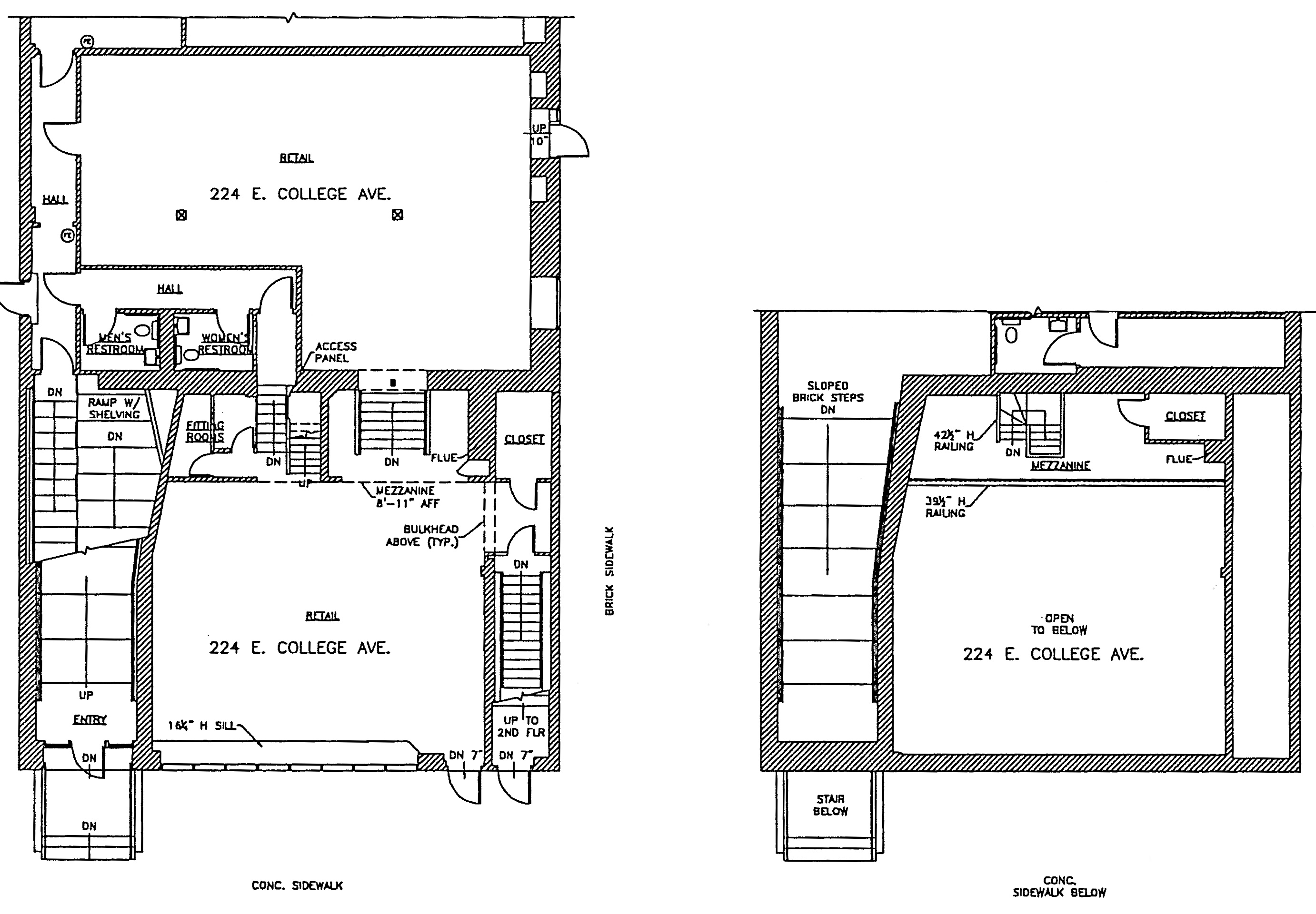
Highly visible retail space on E. College Avenue located directly across from the Penn State University Campus.